このページを印刷する
- 価格
-
3898万円
- 間取
-
4LDK
| 所在地 | 福岡県福岡市東区三苫1丁目 |
|---|---|
| 建物名 | 東区三苫1丁目2期 |
| 交通 |
|
| 特徴 |
| 築年月 | 2026年3月(築1ヶ月) | 新築/中古 | 新築 |
|---|---|---|---|
| 面積 | 109.68m²(33.17坪) | 計測方式 | |
| バルコニー | 向き | ||
| 建物階数 | 地上2階 | 所在階 | 1~2階 |
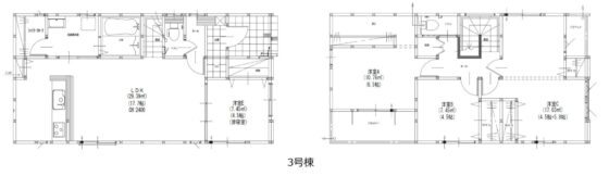
| 部屋番号/区画番号 | 3号棟 | 総戸数/総区画数 | 全4棟 |
| 建物構造 | 木造 | ||
| 敷地全体面積 | 192.57m²(58.25坪) | 延べ床面積 | |
| 間取内容 | LDK17.7帖 1階 洋室4.5帖 1階 洋室10.3帖 2階 洋室6.5帖 2階 洋室4.5帖 2階 | ||
| 駐車場 | 取引態様 | 一般 | |
| 引渡/入居時期 | 相談 | 現況 | |
| 地目 | 雑種地 | 用途地域 | 第一種低層住居専 |
| 都市計画 | 市街化区域 | 地勢 | 平坦 |
| 土地面積 | 115.67m²(34.99坪) | 土地面積計測方式 | |
| 土地権利 | 所有権 | 接道状況 | 一方 |
| 接道方向1 | 東 | 接道間口1 | |
| 接道種別1 | 公道 | 接道幅員1 | 4m |
| 周辺環境 | ●福岡市立三苫小学校・・・・・・・・・・・・・・・徒歩約16分(約1250m) ●福岡市立和白中学校・・・・・・・・・・・・・・・徒歩約5分(約380m) ●セブンイレブン福岡塩浜1丁目店・・・・・・・・・徒歩約6分(約400m) ●マルショク三苫店・・・・・・・・・・・・・・・・徒歩約9分(約700m) ●ドラッグストアコスモス三苫店・・・・・・・・・・徒歩約8分(約600m) ●三苫南公園・・・・・・・・・・・・・・・・・・・徒歩約3分(約170m) |
||
| 設備・条件 |
|
||
| 学区 | |||
| 物件カテゴリー | |||
| 自社物 | 先物 | 状態 | 売出中 |
| 物件番号 | 4596 | 掲載期限日 | 2026年6月22日 |
| 情報登録日 | 2026年3月23日 | 情報更新日 | 2026年3月23日 |
◆東区三苫1丁目2期の新築一戸建て
【現地ご案内可能です♪】お気軽にお問合せ下さいませ。現地集合・現地解散OK!
◆西日本鉄道貝塚線「三苫」駅 徒歩14分
◆西鉄バス「和白中学校入口」停 徒歩7分
◆ウォークインクローゼットあり
◆駐車場2台分あり
◆南向き日当たり良好
◆土地58坪
建築確認番号 第KJH25-01019-1号
ーーーーーーーーーーーーーーーーーーーーーーー★
ベストバランスでは、よかタウンの建売も仲介手数料0円で購入できます!
つまり、販売価格3,898万円の場合、1,352,300円もコストダウン!
さらに商品券もプレゼントします♪
*SUUMOやHOME'S、ヤフー不動産で他に気になる物件がございましたらお気軽にご相談ください!
仲介手数料0円+商品券プレゼントのサービス対象の新築一戸建て、多数ございます♪
ーーーーーーーーーーーーーーーーーーーーーーー★
◆現地案内受付中◆
当日のご内覧も可能です!お仕事帰りのお時間でも事前にご相談くださいませ。
・ここだけコース・・・気になった1物件だけさくっとご見学可能です。
・まとめてコース・・・気になる数物件をまとめてご見学可能です。
・住宅ローンまとめてコース・・・住宅ローンやオプションなどお気軽にご相談ください。
◆ご案内方法◆
・お客様のご指定時間帯に希望の物件でお待ち合わせOK!
◎弊社スタッフによる送迎歓迎♪
・ご自宅
・最寄駅
・物件近くのコンビニなど
ご希望のお迎え場所等ございましたらお気軽にご相談下さい。
ーーーーーーーーーーーーーーーーーーーーーーー★
★中古マンション・中古戸建ても仲介手数料無料・50%値引きでお得に購入可能
☆福岡市で【土地・戸建て・マンション・収益物件売却】も最大仲介手数料無料☆
物件掲載内容と現況に相違がある場合は現況を優先といたします。
物件周辺マップ
Loading...
ご注意
- 物件によっては正確な位置を示していない場合がございます。
- 現況が表示された内容と異なる場合は現況優先といたします。
- 表示されてる地図はGoogle社より提供されてるデータに基づいたものであり、表示内容についての責任は負いかねます。






























